
Total Den Helder
Hoogte- en rioleringsplan

H.M.S. Den Helder B.V.
H.M.S. Den Helder heeft in RvB Engineering een betrouwbare partner gevonden die het hoogte- en rioleringsplan voor Total E&P Nederland BV kon voorzien.
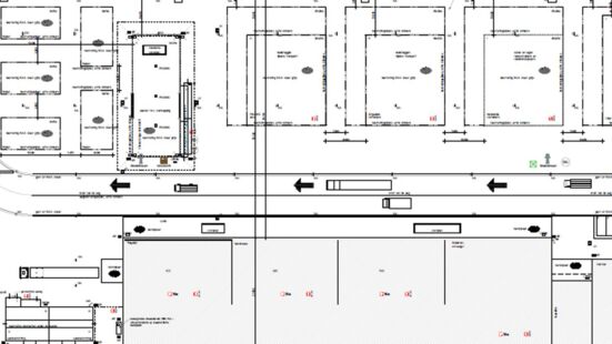
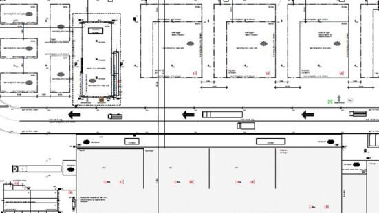
Ontwerp hoogteplan
Het hoogteplan is de basis van elk infraproject. Aan de hand van het hoogteplan kan er verder gegaan worden met de engineering van het rioleringsplan, fundering en verharding. Bij dit project is RvB gevraagd een hoogteplan te maken, zodat de opdrachtgever dit kan gebruiken bij de realisatie van het terrein. RvB Engineering is specialist met unieke ervaring en kennis van infraprojecten waarbij veel factoren bepalend zijn.
Ontwerp rioleringsplan
Voor het terreinwater en hemelwater van de overkappingen hebben we een rioleringsplan ontwikkeld waarmee de opdrachtgever dit project kan realiseren. Met onze kennis en ervaring in de praktijk maken we een rioleringsplan waarmee aan alle eisen voldaan wordt, en de realisatie gemakkelijk verloopt. Door een slim rioleringsplan te ontwerpen, is het een effectief middel voor de verlenging van de levensduur van het terrein. Een goede afvoer zorgt voor een droog terrein waardoor water zo min mogelijk overlast kan veroorzaken.

